こんにちは、草加市民ハウジングです。
お待たせしました!この度、「八條1期」「稲荷3丁目11期」の現地見学会を開催いたします。
.
.
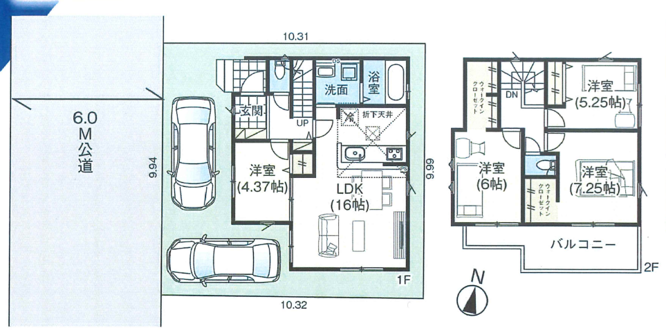
🌿八潮市八條 1期【南道路・駐車2台可】





おすすめポイント
- 南道路で日当たり良好☀
- 駐車2台可(車種による)で来客時やご家族の車にも安心
- LDK18帖以上+食洗機付き対面キッチンで家事もスムーズ
- リビングイン階段で家族のコミュニケーションも自然に
- WIC・土間収納付きで収納力充実
🔗https://estate.century21soka.com/sale/estate-detail/344421
.
.
🌿草加市稲荷3丁目 11期【駐車2台可・ZEH水準・長期優良住宅】


おすすめポイント
- 駐車2台可で日常の使い勝手良好
- LDK16帖・対面キッチンで家族団らんを楽しめます
- 浴室乾燥機付きで雨の日も快適
- 全居室収納+WIC×2で整理整頓しやすい
- 南面ワイドバルコニーで洗濯や日光浴も便利
- 周辺買物施設充実で生活利便性◎
- ZEH水準仕様・長期優良住宅で快適かつ安心
🔗https://estate.century21soka.com/sale/estate-detail/357038
.
.
📅現地見学会のご案内
- 八條1期・稲荷3丁目11期ともに、現地内覧可能です。
- 間取りや設備、日当たりなど、写真では伝わらない魅力を体感できます
- スタッフが物件の特徴や周辺環境を丁寧にご案内します
🏡ご予約・お問い合わせは、HPフォームまたはお電話にて受け付け中です。
皆さまのご来場を心よりお待ちしております!






