0120-830-021

受付時間 9:00〜19:00
水曜定休

草加や八潮の不動産のご相談はお気軽に
以下フォームまたはお電話でお問い合わせください。
オンラインでのご相談も可能です。

0120-830-021

受付時間 9:00〜19:00
水曜定休

住まいを
買いたい

住まいを
売りたい

リフォーム
住まいを
建てたい他

会社情報

採用情報

特販課

営業1課

営業2課

営業3課

営業4課

営業5課

賃貸課

業務課

人事部

販売促進部

草加西口店

特販課

営業1課

営業2課

営業3課

営業4課

営業5課

賃貸課

業務課

人事部

販売促進部

草加西口店

お客様の想いを
実現するために
頑張ります!

山口 華音

Kanon Yamaguchi

所属/自己紹介

所属

営業5課

出身

埼玉県生まれです

草加八潮
ここが好き!

春になるときれいな桜が咲く綾瀬川沿い。
手代橋近くの1本の大きな木です!!

家族構成

父と母と暮らしています

趣味

星や月、雲など空を眺めることがすきです!

資格/受賞歴

資格

宅地建物取引士取得に向けて勉強中です

受賞歴

今後の活躍にご期待ください!

ご案内情報

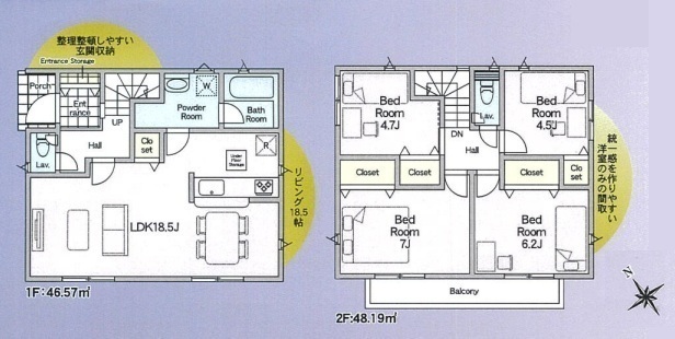
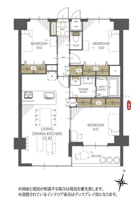
おすすめ物件

担当お客様の声

執筆ブログ

おすすめ魅力百選

吉田 拓人
斎藤 聡